Проектирование

Наша цель - создание и внедрение передовых технических решений в области проектирования, изготовления и строительства изотермических и шаровых резервуаров для хранения сжиженных газов, обеспечивая высокий уровень промышленной безопасности и поддерживая отечественную инженерную и производственную базу.

Оказываем профессиональные консультации по проектированию и техническим решениям. Помогаем заказчикам выбрать наилучшие подходы для реализации их задач.

Мы адаптируем зарубежные проекты изотермических резервуаров к требованиям российских стандартов. Учитываем все аспекты: от нормативной базы до условий эксплуатации.

Предоставляем научно-техническую поддержку для сложных инженерных проектов. Это помогает находить оптимальные решения и внедрять передовые технологии.

Готовим нормативно-техническую документацию для производства изотермических резервуаров. Все документы разрабатываются в соответствии с актуальными требованиями отрасли.

Контролируем реализацию проектных решений на всех этапах изготовления и монтажа резервуаров. Авторский надзор гарантирует соответствие работ проектной документации и техническим стандартам.

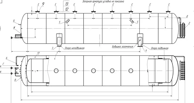
Мы создаем технические решения для изотермических резервуаров, учитывая их сложность и специфику. Наши проекты и рабочая документация разрабатываются в строгом соответствии с современными стандартами.

Подготавливаем точные и подробные чертежи для реализации инженерных решений. Особое внимание уделяем деталям, чтобы гарантировать безупречное соответствие требованиям проекта.

Создаем проекты производства работ, обеспечивающие эффективную организацию всех этапов изготовления и монтажа резервуаров. Наши решения помогают оптимизировать процесс и минимизировать риски.